
PRODUCT CLAS����� �������Ƴ������������ �������Ƴ������������ �������Ƴ������������ �������Ƴ�������SIFICATION
EOCR-SP01/10/20����� �������Ƴ������������ �������Ƴ������������ �������Ƴ������������ �������Ƴ�������
SAMUSCO智能保护接触����� �������Ƴ������������ �������Ƴ������������ �������Ƴ������������ �������Ƴ�������器
自动复位型电子过流继电器����� �������Ƴ������������ �������Ƴ������������ �������Ƴ������������ �������Ƴ�������
技术文章/ article
更新时间:2021-08-20 ����� �������Ƴ����������� �������Ƴ������������ �������Ƴ������������ �������Ƴ�������; &nb����� �������Ƴ����������� �������Ƴ������������ �������Ƴ����������� �������Ƴ�������sp; ����� �������Ƴ������������ �������Ƴ������������ �������Ƴ������������ �������Ƴ�������
浏览次数:818在建筑电气的等电位联结措����� �������Ƴ������������ �������Ƴ������������ �������Ƴ������������ �������Ƴ�������施设计中,经常会碰到“联结"这个词,那么“联结"与“连接"有什么区别呢?下面给大家����� �������Ƴ������������ �������Ƴ������������ �������Ƴ������������ �������Ƴ������简单地分析一下,希望对大家有����� �������Ƴ������������ �������Ƴ����������� �������Ƴ������������ �������Ƴ�������点用处。

(1)电气中“连接"的含义
电气的“连接"通常是电源与设备之间的连通,比����� �������Ƴ������������ �������Ƴ������������ �������Ƴ������������ �������Ƴ�������如电缆与配电箱的接线端子或与用电设备的接����� �������Ƴ������������ �������Ƴ������������ �������Ƴ������������ �������Ƴ�������线端子的相连,以满足在电气上的相互连通以传����� �������Ƴ����������� �������Ƴ������������ �������Ƴ������������ �������Ƴ�������输电能。

(2)电气中“联结"的含����� �������Ƴ������������ �������Ƴ����������� �������Ƴ������������ �������Ƴ������义
电气的“联结"是指 “为实现电位的相等而进行����� �������Ƴ������������ �������Ƴ����������� �������Ƴ������������ �������Ƴ�������的连接",“联结"通常是指多个可导����� �������Ƴ������������ �������Ƴ����������� �������Ƴ������������ �������Ƴ�������电部件互相连通,虽然也是一种连接����� �������Ƴ����������� �������Ƴ����������� �������Ƴ������������ �������Ƴ�������,但是在交流供电的情况下,����� �������Ƴ������������ �������Ƴ����������� �������Ƴ����������� �������Ƴ������对故障电流的阻抗比较大(无法像PE线那样可以����� �������Ƴ������������ �������Ƴ����������� �������Ƴ������������ �������Ƴ�������传送大幅值的故障电流来使保����� �������Ƴ������������ �������Ƴ������������ �������Ƴ������������ �������Ƴ�������护断路器动作),主要是用来传导电位����� �������Ƴ������������ �������Ƴ����������� �������Ƴ������������ �������Ƴ�������使相互连通的部件的电位相等或接近。所以做等电位措施,均是用“等电位联结“ 。����� �������Ƴ����������� �������Ƴ����������� �������Ƴ����������� �������Ƴ�������

(3)电气中“联结"与“连接"的区分

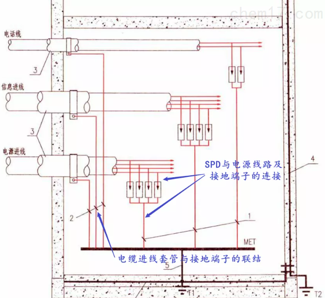
如上图,SPD与电源进线和接地端子����� �������Ƴ������������ �������Ƴ����������� �������Ƴ������������ �������Ƴ�������为实现泄放雷电流而做的连通就属于“连接";电源电缆进线处的金属套管与接地端子之间为了实����� �������Ƴ������������ �������Ƴ������������ �������Ƴ������������ �������Ƴ�������现等电位而做的连通就属于“联结"。

返回列表
企业名称:上海韩施电气自动化设备有限公司
联系电话:021-62308119����� �������Ƴ����������� �������Ƴ������������ �������Ƴ������������ �������Ƴ�������
公司地址:上海市宝山区市一路199号1楼23����� �������Ƴ������������ �������Ƴ������������ �������Ƴ������������ �������Ƴ�������92A
企业邮箱:1234065@qq.com

微信二维码

网站二维码
Copyright © 2024上����� �������Ƴ������������ �������Ƴ������������ �������Ƴ������������ �������Ƴ�������海韩施电气自动化设备有限公司 All Ri����� �������Ƴ������������ �������Ƴ������������ �������Ƴ������������ �������Ƴ�������ghts Reserve����� �������Ƴ������������ �������Ƴ������������ �������Ƴ������������ �������Ƴ�������d ����� �������Ƴ������������ �������Ƴ������������ �������Ƴ������������ �������Ƴ�������
技术支持:化工仪器网  ����� �������Ƴ������������ �������Ƴ������������ �������Ƴ������������ �������Ƴ������;管理登录 &nbs����� �������Ƴ����������� �������Ƴ������������ �������Ƴ������������ �������Ƴ�������p;